Whether you want to live near the coast or be part of a growing urban centre, SHAWOOD house and land is available within our own communities as well as masterplanned neighbourhoods throughout Greater Sydney and the Illawarra.

shawood buying your shawood

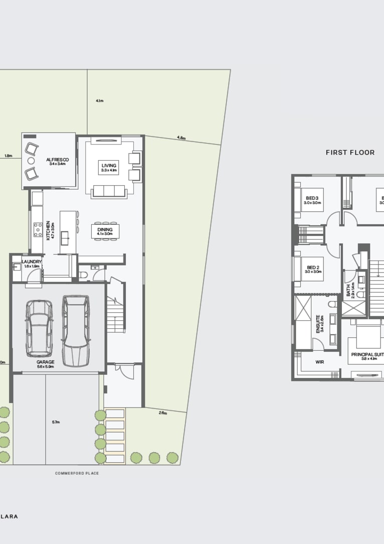
Buying your SHAWOOD.

SHAWOOD house and land comes with certainty – of quality, of delivery, of price. While you can choose to upgrade interiors to your tastes, costs associated with construction and inspections, including covenants, health and safety and council requirements, are all included in the fixed price of your home.

HOW TO BUY